9659彩集团南北仪器专业提供实验室仪器设备一站式解决方案
说明:
AEH电动卧式机台是专为HF系列和NK系列推拉力计配套用的推拉负荷试验台。本产品采用双导杆结构,具有稳定性好,适用范围广,使用方便等优点,并具有无极调速,手动(点动)、自动控制切换功能。适用于电子电器、电线电缆、五金机电、电磁机械、汽车配件、动力机械、粘胶化工、建筑门窗、塑胶塑编、弹簧制造、器械、消防器材、印刷包装、剃须刀业、渔具航空、拉链纽扣、纺织服装、煤炭、家具、电梯、打火机及点火装置、锁具、笔业、电力等行业及科研机构、学校等测试。
参数:
大测试负荷:500N
测试行程:150mm
测试速度:0~500mm/min
工作电压:AC220V
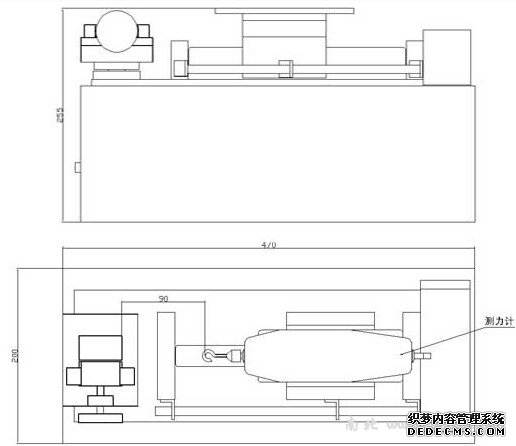
产品结构图:


微信公众号

京东旗舰店

天猫店铺
国内销售
9659彩集团电话:400 098 6966
国际贸易
电话: +86-371-60310701
售后服务
9659彩集团电话:+86-371-60153599
郑州地址一:郑州市、金水区、北环路73号、瀚海北金A座14层
9659彩集团郑州地址二:郑州市、金水区、北环路72号
9659彩集团北京地址:北京市丰台区贾家花园15号院7号院一层西侧
9659彩集团 海外进出口贸易(离岸中心):ROOM 803, CHEVALIER HOUSE, 45-51 CHATHAM ROAD SOUTH, TSIM SHA TSUI, KOWLOON, H K NANBEI INTERNATIONAL GROUP LIMITED
上海地址:上海市、普陀区、长寿路76号
工厂地址:沁阳市未来路、省科学院沁阳科创园区